| Price: | $379,000 |
| Property Type: | residential |
| MLS #: | 25015505 |
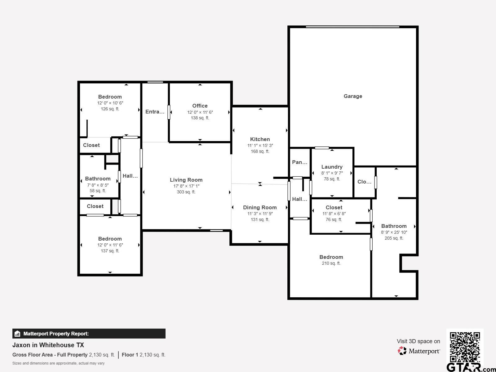
| Charming Corner Lot in Whitehouse ISD! Welcome to this beautiful all-brick, single-story home located in a quaint subdivision near all the conveniences of Whitehouse. Recently refreshed with new carpet and fresh paint throughout, this 3-bedroom, 2-bath home offers an open-concept layout with a bonus room—perfect for an office, playroom, or man cave. The spacious kitchen with dark cabinets and granite countertops is ideal for cooking and entertaining, featuring a breakfast bar, walk-in pantry, and plenty of cabinet space. The split primary suite provides privacy and includes an oversized bathroom with a soaking tub, separate shower, dual walk-in closets, and extra space for a vanity or dressing area. Outside, enjoy relaxing on the covered patio overlooking the nicely sized fenced yard with established landscaping, sprinkler system, and landscape lighting. The large storage building in back is a real bonus—half is finished with A/C, perfect for a studio or office, and the other half for storage space. Additional perks include a 2-car garage with extra storage and a designated space for a second refrigerator. Zoned for the highly sought-after Whitehouse ISD, this home checks all the boxes for comfort, functionality, and location. Call your favorite Realtor for a showing! | |
| Sq Ft: | 2190 |
| Area: | Smith |
| Year Built: | 2013 |
| Bedrooms: | Three |
| Bathrooms: | Two |
| Garage: | 2 |
| Acres: | 0.27 |
| Virtual Tour: | Click here to view |
| CONSTRUCTION : | Brick Veneer |
| COOLING : | Central Electric |
| DINING AREAS : | Kitchen/Eating Combo |
| FENCING : | Wood Fence |
| FIREPLACE : | None |
| INTERIOR : | Ceiling Fan |
| INTERIOR : | Security System |
| INTERIOR : | Attic Stairs |
| INTERIOR : | Blinds |
| KITCHEN EQUIPMENT : | Range/Oven-Electric |
| KITCHEN EQUIPMENT : | Dishwasher |
| KITCHEN EQUIPMENT : | Disposal |
| KITCHEN EQUIPMENT : | Microwave |
| KITCHEN EQUIPMENT : | Pantry |
| OUTBUILDINGS : | Storage Building(s) |
| STYLE : | Traditional |
| DRIVEWAY : | Concrete |
| FLOORING : | Carpet |
| FLOORING : | Tile |
| POOL/SPA : | None |
Courtesy: Mesenbring, Brandy • eXp Realty, LLC-Tyler • 888-519-7431
The data relating to real estate for sale on this website comes in part from the Internet Data Exchange (IDX) of the Greater Tyler Association of REALTORS Multiple Listing Service. The IDX logo indicates listings of other real estate firms that are identified in the detailed listing information. The information being provided is for consumers' personal, non-commercial use and may not be used for any purpose other than to identify prospective properties consumers may be interested in purchasing. This information is deemed reliable, but not guaranteed.
This content last refreshed on 12/23/2025 04:00 AM. Some properties which appear for sale on this web site may subsequently have sold or may no longer be available.